濾筒除塵器是一種比較的過濾設備,優點是除塵,設備體積小,過濾面積大,過濾風速低,噪音低等多種優點。 本設備主要有以下4個部分組成: 1、風機部分: 本設備風機選用低噪
濾筒除塵器是一種比較的過濾設備,優點是除塵,設備體積小,過濾面積大,過濾風速低,噪音低等多種優點。
本設備主要有以下4個部分組成:
1、風機部分:
本設備風機選用低噪音風機。
2、清灰部分:
本設備采用脈沖清灰方式,共設有電磁閥5個,脈沖閥5個。使用方法是無觸點脈沖控制儀控制清灰,控制儀輸入電壓220v、輸出電壓24v。
我廠根據工業需要,治理工業三廢,保護和環境衛生、提高人民健康水平,在鞍山焦耐設計院和沈陽凈化除塵器廠的指導和幫助下,在一九七一年試制成功KXD-1型先導電磁閥,QMF-100型脈沖閥,CT536-22型脈沖閥,WMK無觸點脈沖控制儀,隨著成功了電磁連身放氣閥,改進了WMK無觸點脈沖控制儀,生產了2型、3型脈沖控制儀等產品,為脈沖袋式除塵器控制系統配套使用。本產品已有二十的生產歷史。結構新穎,美觀大方,維修方便,造價便宜,經銷 各地,來與脈沖濾芯除塵器配套使用,經鑒定和用戶廠家實踐證明,工作性能良好,深受用戶歡迎。對污染,物資回收,變廢為寶,環境起了 的作用。
KXD-1型電磁閥:
(1)使用說明:
KXD-1型電磁閥是WMK-1型、2型、3型,無觸點脈沖控制儀配套產品,也是氣動控制裝置中采用的基本原件,電磁閥的實際通道直徑是2mm,流量小,所以作為脈沖閥的先導閥,由脈沖控制儀的輸出信號直接控制電磁閥的開閉,而電磁閥的開閉又控制著脈沖閥背壓室的氣壓,從而控制脈沖閥噴吹的開閉實現壓縮空氣的切換。
電磁閥的磁路系統采用了具有矩形磁制回路的鐵鋁合金,動作、靈敏,由電磁閥的活動鐵心處于壓縮彈簧的工作狀態,所以任意選擇電磁閥的安裝位置。均可保持電磁閥的正常工作,具有結構簡單體積小,外形美觀,工作,耐空氣腐蝕性較好的特點。
(2)技術特性:
工作介質:清潔而干燥的空氣。
工作壓力:3-5kgF/Cm2(0.3-0.5MP).
額定流量:JM2/N
額定電壓:直流電壓24V
電流: 180-220mA
溫升: 環境溫度不超過40℃溫升小于80℃。
絕緣性能: 在環境溫度為-20℃ - +45℃,相對溫度為85%以下時,絕緣電阻大于20兆。
動作次數: 連續工作40萬次經清潔處理后仍可繼續使用。
結構原理:電磁閥的主要構件閥坐、外殼、線圈、固定鐵心和活動鐵心進氣口和出氣口。當線圈不通電時靠彈簧的彈力使活動鐵心封住進氣口,此時氣路不通。當線圈通電后,活動鐵心被吸動,鐵心抬起打開進氣噴嘴,氣路接通,使脈沖閥背壓室通過電磁閥泄通,脈沖閥噴吹口打開,實現壓縮空氣的噴吹,線圈斷電后彈簧的彈力,使活動鐵心封住進氣口,完成電磁閥的一個動作過程。
電磁閥通電時間即為電磁閥氣路接通時間,也就是脈沖閥的噴吹時間,這個時間可由無觸點脈沖控制儀的脈沖寬度來調節,調節范圍為0.3-0.5秒。
(3)使用與維護:
當環境溫度高于40℃,溫升相應降低,例:環境溫度為50℃時溫升小于70℃。無觸點脈沖控制儀的片簧插頭的第1-5根輸出線分別與每個電磁閥的一個引出線相接,而COM為脈沖閥的共用零線,須與每個電磁閥的另一根引出線共接。注意各線不應破損斷路和短路。
通電后,電磁閥不工作,應檢查電磁閥圈是否有斷路和短路,其方法可用 表測量線圈電阻,應在500-600歐姆之間。
電磁閥通電后嗡嗡聲大,應檢查活動鐵心和隔磁套管間是否有雜物,固定鐵心和活動鐵心端面是否清潔,排氣密封塞是否損壞,變形突起。
鐵心園法蘭盤與閥座間漏氣,應檢查園形密封圈是否損壞。
電磁閥每工作40萬次以后,應對磁回路進行清潔處理排除其間的灰塵和橡膠粉塵,以免阻障活動鐵心的工作。
電磁閥應處于常閉狀態,即電磁閥線圈系短時反復通電,占空比≤16.7%,不應長期連續通電,以免電燒壞電磁閥線圈。
II型低壓電磁閥:
II型低壓電磁的技術說明:結構原理使用與維護,可照KXC-1型電磁閥。
II型低壓電磁閥,直流電壓30V、電流1A。
應和LSK型晶體管數字控制器配套使用。
QMF-100型脈沖閥:
(1)使用與說明:
QMF-100型脈沖閥是噴沖系統的執行機構,在控制儀無信號輸出,氣包內壓縮空氣3-5kg/cm2通過節流孔進入脈沖閥背壓室C,波紋膜片兩側氣壓相等,但受壓面積不同(FC>FA),加上彈簧壓力作用顯然PC>PA,所以噴吹口被膜片封閉,當控制儀輸出信號,控制閥C室內氣體泄掉,此時A室壓力大于C室且克服彈簧壓力,將膜片推向C室,A室溝通B室,壓縮空氣經B室通過噴吹管孔眼噴進文氏管及濾袋進行清灰,當控制儀的信號消失后,控制閥關,C室停止排氣,且由節流口充氣而膜片回位,使噴吹口再次封閉。
(2)性 能:
噴吹壓力:3-5kg
脈沖寬度:0.2-0.3秒
重 量:0.5 kg
CT536-22型脈沖閥:
(1)使用與說明:
CT536-22型脈沖閥技術說明,結構原理使用與維護,可參照QMF-100型脈沖閥。
(2)性 能:
脈沖寬度:0.1-0.3秒
噴吹壓力:3-5kg
重 量:0.5 kg
可配KXC-1型電磁閥和低壓電磁閥配套使用.
Q23×D型電磁閥:
Q23×D型電磁閥,系二位三通小型電磁閥,技術說明結構原理,使用與維護可按KXC-1型電磁閥,都在無觸點脈沖控制儀的控制發出信號使用,與QMF-100型脈沖閥和C.T.536-22型脈沖閥配套使用。
電磁連身放氣閥:
KXD-1型電磁連身放氣閥是在原KXD-1型電磁閥去掉底座的上半部分與脈沖閥的閥體改變了閥蓋組裝在一起的新體、KXD-1電磁連身放氣閥與WMK無觸點脈沖控制儀配套使用,本氣閥直接安裝在除塵器包上,氣閥的出頭引線雙頭接通控制儀的引線,接通電源發出信號,即可使用。但不需要再安裝單個的電磁閥和脈沖閥。
本閥使用技術維修及結構原理,可按KXD-1型電磁閥和QMF-100型脈沖閥匠技術說明和維護。
本閥使用壽命長、對氣源要求不高,安裝和維修方便,造價便宜,工作。
低壓電磁脈沖連身放氣閥:
KXD-1先導電磁閥上半部分及磁心與QMF-100型脈沖閥結合在一起形成新型、低壓電磁脈沖連身放氣閥。
本閥使用于DCF-II型放氣閥,安裝及維修都比較方便,不易損壞,造價便宜、工作。
II型電磁連身放氣閥的配套使用,適用于安裝 要發生氣脈沖閥的各種設備與JXK-II型晶體管數字控制器,配套脈沖袋式除塵器脈沖控制系統,可進行遠距離控制。多臺除塵器集中安裝都可。
本閥外形美觀大方,結構新穎、使用壽命長,對氣源要求不高,安裝方便,工作。技術維護與KXD-1型電磁閥和QMF-100型脈沖閥相同。
性能:
工作壓力:3-5公斤
電 流:1A
電 壓:24V
重量度:0.7公斤
WMK無觸點脈沖控制儀:
WMK無觸點脈沖控制儀與電磁閥、電磁連身放氣閥配套使用,組成濾芯除塵器的電子自動控制系統,脈沖間隔時間及脈沖寬度,均可連續調節并有記憶動作程序。
WMK無觸點脈沖控制儀工作性能、條件:
輸入電壓:220V 頻率:50HZ
輸出電壓:24V 脈沖寬度:0.2-0.5秒
脈沖間隔:1-30秒 工作環境:-20℃- +50℃
相對濕度:85%(溫度在16℃-32℃)
3 過濾部分:
本設備采用聚脂纖維濾芯過濾的方法,每個濾芯的過濾面積10-15㎡,根據處理風量的需要可以增加濾芯的數量,濾芯的拆裝維修不需要工具,濾芯使用周期為1年--2年。
4 灰箱部分:
根據實際需要每天打開檢查門,查看灰塵的數量,及時 。
本設備主要技術參數:
外 形:800×1200×2800 mm.
濾 芯 數 量: 10
無觸點脈沖控制儀:1
無觸點脈沖控制儀電壓: 220v. (輸入)
無觸點脈沖控制儀電壓:24v.(輸出)
電磁閥數量: 5
電磁閥電壓:24v.
本產品需3—5公斤的壓縮空氣。用戶應自備油水分離調壓器。
本廠系列產品除塵設備及使用說明書如有改變恕不另行通知.
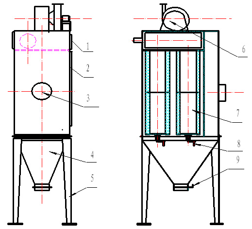
濾筒式除塵器示意圖

|
序號 |
名稱 |
|
1 |
風機室 |
|
2 |
反吹室 |
|
3 |
濾芯 |
|
4 |
進風口 |
|
5 |
上門 |
|
6 |
下門 |
序號 名稱 序號 名稱 1 上門 6 風機 2 下門 7 濾芯 3 進風口 8 調節杅 4 灰斗 9 閘板 5 支腿
站內搜索

泊頭潤天環保科技有限公司總部
地址:河北省泊頭市馮三番工業區
電話:0317-8349891 8349892
傳真:0317-8344899
手機:18730729991
微信號:18730729991
Q Q:3544253665
郵箱:rthb@163.com
聯系人:馮經理
采購指南